NUOVO ULTIMO PIANO

305.000€
  • Tipologia: Appartamento
  • Locali: 3
  • Mq: 150 m²
  • Bagni: 2

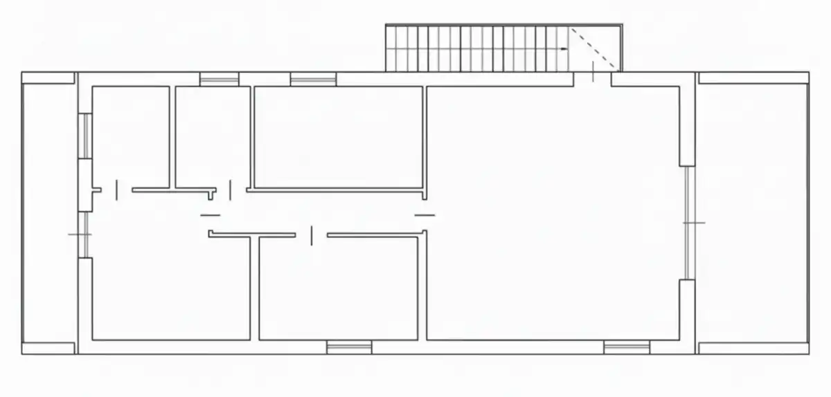
MESTRINO - (Rif.A031-S) - appartamento in bifamiliare di nuova costruzione, situato in un tranquillo quartiere residenziale, comodo a tutti i principali servizi. L'immobile, in classe energetica A4, ed è caratterizzato da finiture moderne e ottimi impianti. Caratteristiche principali: Soggiorno ampio con angolo cucina, con possibilità di installare una penisola o un'isola. Terrazzo abitabile con una vista panoramica sui colli. Zona notte composta da: Camera matrimoniale con bagno padronale. Due camere medie. Ulteriore bagno a servizio della zona notte. Al piano terra garage con posto auto antistante. L'unità è ubicata al secondo e ultimo piano, con accesso tramite una comoda scala esterna oppure attraverso un ascensore privato che arriva direttamente all'interno dell'appartamento. L'immobile è ideale per chi cerca una soluzione indipendente, comoda ai servizi, ma immersa in una zona verde che offre tranquillità e privacy. Caratteristiche tecniche: Impianto fotovoltaico da 3 kW. Pompa di calore. Tapparelle elettriche. Non perdere l'opportunità di vivere in un contesto moderno ed efficiente. Chiamaci per avere ulteriori informazioni o per fissare un appuntamento: Agenzia immobiliare MyhomeGroup - Via Padova 12/e, 35030 Selvazzano Dentro - Pd - Tel. 049.86.86.040 - selva@myhomegroup.it - www.myhomegroup.it Devi vendere per comprare? Nessun problema, ci pensiamo noi! Vuoi acquistare la tua nuova casa ma hai bisogno di vendere prima? My Home Group ti offre un servizio completo per la vendita del tuo immobile, aiutandoti a ottenere il massimo valore in tempi rapidi. Valutazione gratuita e senza impegno Scopri quanto vale la tua casa! Prenota subito una valutazione gratuita con i nostri esperti. https://www.myhomegroup.it/it/prenota una valutazione Affidati a noi per una gestione semplice e professionale della vendita del tuo immobile! L'agenzia MyHomeGroup di Selvazzano Dentro, copre le zone di Tencarola, Caselle, San Domenico, Feriole, Abano Terme, Montegrotto, Saccolongo, Teolo, Torreglia, Cervarese Santa Croce, Mestrino, Rubano, Padova.
Dettagli proprietà
Riferimento:
#A031-S
Mq:
150 m²
Locali:
3
Bagni:
2
Anno:
2022
Comune:
Mestrino
Zona:
Mestrino
C.E.:
A4 (solo per APE 2015)
I.P.E.:
18.12
Ambienti
Terrazzi:
2
Livelli e comfort
Totale Piani:
2
N. Piano:
2
Mappa
Planimetrie e Ape 2015
Richiedi informazioni